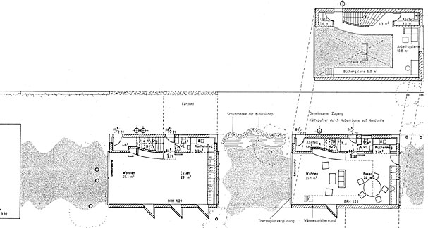
kleine wohnanlage
standort: berlin-weissensee
ökologische bauweise
bauzeit: 1994 architekt: martin focks architekten